Just Listed

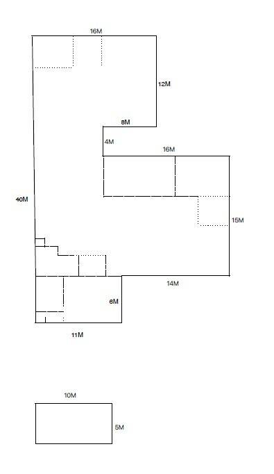
Prime Light Industrial Opportunity – 5,290m² Block + 738m² Total Shed Space!

 

Secure a versatile commercial holding with huge potential. Zoned Light Industrial, this expansive property offers exceptional workshop, storage and business capability.

Key features include:
• Approx. 738m² of shed space across multiple structures
• Three-phase power to the front two sheds
• Front workshop with hoist – ideal for mechanical or fabrication work
• Two mezzanines for valuable additional storage
• Dedicated office space for business operations
• Rear shed with pit – perfect for vehicle servicing
• Solar power system reducing operating costs
• Scheme water connected plus septic tanks

With excellent access and ample land for future expansion, this property delivers outstanding flexibility for a growing business or astute investor.

Shire Rates approx $1800 per annum.

Built in 1969 of aluminium clad and iron roof.

Disclaimer: every precaution has been taken to establish the accuracy of this information. The details should not be taken as a representation in any respect on the part of the Seller or its agent. Interested parties should contact the nominated person or office for full and current details.

5,290 m2
Address 6 Edwards St, Merredin
Price $350,000
Property Type Commercial
Property ID 1895
Category Industrial/Warehouse
Land Area 5,290 m2
Warehouse Area 738m2

Agent Details

Faith Kelly photo

Faith Kelly

08 9574 2917
View Profile